Anbau Wohnhaus, Laupen

Anbau Wohnhaus in Laupen

Ein Anbau mit viel Bezug zur Natur.

In diesem Projekt geht es um die Erweiterung eines älteren Einfamilienhauses für eine junge, wachsende Familie. Der Bedarf an zusätzlichem Wohnraum war durch die steigende Anzahl an Familienmitgliedern und dem Wunsch nach spezialisierten Räumen für Homeoffice und Musik entstanden.

Der Anbau wurde als eigenständiger Baukörper konzipiert, dessen zeitgemässe Architektur sich bewusst vom bestehenden Gebäude absetzt, aber dennoch das Gesamtbild des Ensembles und den Massstab des Quartiers wahrt.

Bei der Planung des Anbaus wurde besonderes Augenmerk auf die Grösse und Positionierung des Baukörpers auf dem Grundstück gelegt. Ziel war es, den gewachsenen Aussenraum, der von der Familie als wichtiger Aufenthaltsort und für die Anpflanzung genutzt wird, einzubeziehen und zu respektieren.

Die grossen Fensteröffnungen des Anbaus wurden bewusst so entworfen, dass sie den Bezug zum eigenen Aussenraum verstärken und gleichzeitig eine helle, offene Wohnatmosphäre schaffen.

Das Grundrisskonzept des Anbaus erlaubt es, die Räume separat vom Hauptgebäude zu nutzen, was Rückzugsmöglichkeiten für die Familienmitglieder bietet. Zugleich wurde die Option eingeplant, den Anbau später separat vermieten zu können.

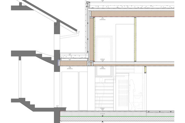
Ein zentraler Aspekt des Projektes war die Verwendung von natürlichen, ökologischen Baustoffen. Dazu gehören Holz, Schafwolle und Lehm, die nicht nur nachhaltig sind, sondern auch ein gesundes und natürliches Wohnklima begünstigen.