Einbau Dachwohnung Post

Einbau Dachwohnung im alten Postgebäude in Burgdorf

Die Verwandlung eines dunklen Dachstocks zu einer hellen Loftwohnung mit offener Wohnatmosphäre.

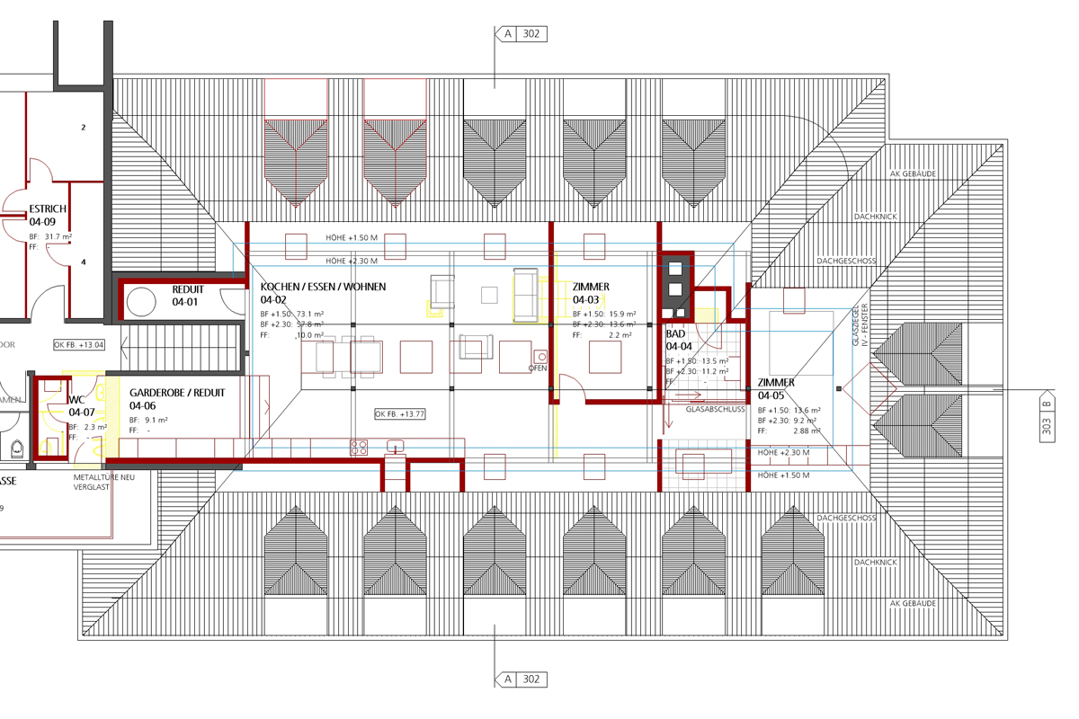
Das Projekt befasste sich mit der Transformation eines großen, bisher ungenutzten Dachstocks im alten Postgebäude in eine helle und geräumige Loftwohnung. Durch die geschickte Anordnung von neuen Dachfenstern konnte eine gute Belichtung der Wohnung erreicht werden.

Ein günstiger Umstand für die gute Belichtung der Dachwohnung bildete das grosse Walmdach des Gebäudes, das anstelle eines Dachfirstes eine waagrechte Dachfläche aufwies. Diese Konstellation ermöglichte eine grosszügige Belichtung durch neue Dachfenster, ohne die äussere Erscheinung des Daches zusätzlich zu belasten.

Ein besonderes Augenmerk lag zudem auf der Integration der ursprünglichen Holztragstruktur des Dachstocks in die Gestaltung der Wohnung. Diese sichtbaren Holzelemente verleihen den Räumen eine einzigartige Atmosphäre.

Das um das Jahr 1924 erbaute Postgebäude steht unter Denkmalschutz, was eine intensive Absprache der baulichen Eingriffe mit der zuständigen Behörde erforderte. In einer guten Zusammenarbeit gelang es, die historische Identität des Gebäudes zu bewahren und mit einer attraktiven modernen Gestaltung zu verbinden.