Neubau MFH in Burgdorf

Neubau MFH in Burgdorf

Innovative Holzbauweise - ein perfektes Zusammenspiel von Planung, Vorfertigung und Montage.

So funktioniert modernes Bauen in Holzbauweise:

Die vorgefertigten Elementen aus dem Werk des Unternehmers werden mit den Tiefladern auf die Baustelle geliefert, mit dem Kran positioniert und wie in einem Zusammensetzspiel verbaut. Dabei werden die Fassaden bereits im Endzustand angeliefert - mit der schon fertig verarbeiteten Holzfassade und den eingesetzten Fenstern. Bei trockenen Wetterbedingungen wächst bei dieser Bauweise fast täglich ein neues Stockwerk in die Höhe.

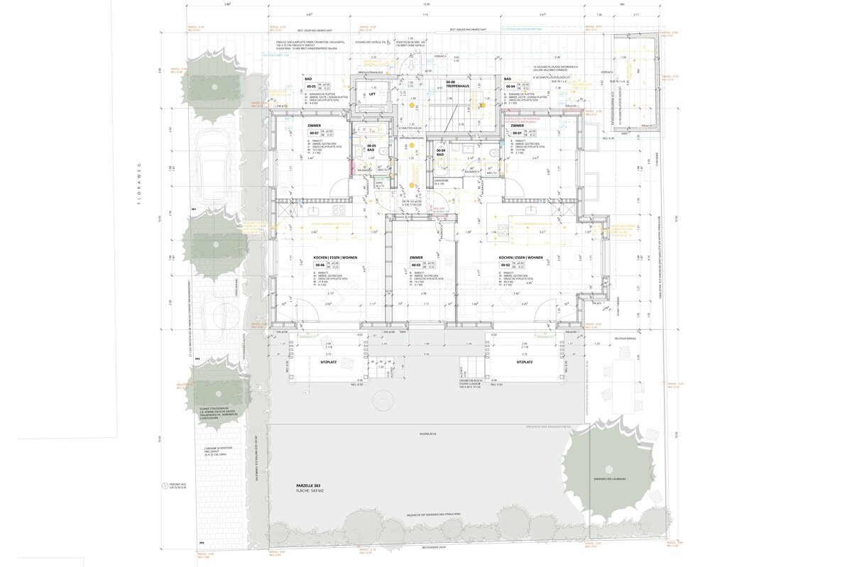
Ein baufällig gewordenes Haus konnte nicht mit verhältnismässigen Investitionen ertüchtigt werden. Deshalb entschied sich die Eigentümerschaft für einen Ersatzneubau als Mehrfamilienhaus mit Mietwohnungen (2.5- und 3.5-Zimmer-Wohnungen). Das entwickelte Projekt nutzt das eher kleine Grundstück mit den durch die Bauzone vorgegebenen Abstandsvorschriften optimal aus und führt so zu einer Innenverdichtung des Quartiers. Der Wunsch der Bauherrschaft nach einer südorientierten Dachfläche mit einer Photovoltaikanlage ermöglichte zwei Dachwohnungen, die sich über zwei Etagen erstrecken. Das Mehrfamilienhaus wurde als Holzbau mit vorfabrizierten Holzelementen, mit schon fertig verarbeiteter Holzfassade und eingesetzten Fenstern, ausgeführt. Einzig das Kellergeschoss und das Treppenhaus mit Liftanlage wurde in konventioneller Bauweise mit Beton errichtet. Das Materialkonzept wurde so gestaltet, dass die Holzbauweise durch sichtbare Holzoberflächen an den Decken, teils auch an den Wänden, und in der Konstruktion der Balkone spürbar wird.

Kontakt Vermietung: René Zimmermann | zimmermann(at)sesamnet.ch