Neubau Wohnhäuser in Oberbottigen

Neubau Wohnhäuser in Oberbottigen

In das Ortsbild integrierte Holzhäuser.

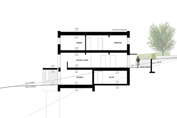
Auf einem freien Grundstück am Siedlungsrand von Bern - in ländlicher Umgebung zwischen Kirche und Käserei gelegen - entstanden vier Wohnhäuser in moderner Holzbauweise.

Die Häuser nehmen Bezug auf die Hanglage, indem das Wohnen südseitig über drei Stockwerke organisiert wird. Hohe Wohnräume mit grossen Fensterflächen schaffen eine Verbindung zur Natur, während zugleich ein angenehmes Wohnklima mit viel Tageslicht geschaffen wird.

Die vier Wohnhäuser weisen äusserlich ein einheitliches Erscheinungsbild auf, sind jedoch im inneren allesamt unterschiedlich und individuell auf die Bedürfnisse ihrer Bewohner konzipiert. Diese bewusste Entscheidung für eine homogene äussere Erscheinung betont die Einheitlichkeit der Siedlung und verankert sie zugleich im lokalen Kontext. 

Durch den Einsatz von Holz als primärem Baumaterial schaffen wir eine harmonische Verbindung zur ländlichen Bautradition des Ortes und setzen gleichzeitig auf einen sorgsamen Umgang mit Ressourcen und CO2-Bilanz.